Skip to content Skip to sidebar Skip to footer

Widget HTML #1

Pfosten Riegel Fassade Detail - Https Www Architektur Uni Siegen De Aktuelles Brett Bauko Wi Pdf Reader Fassadensysteme 2010 05 10 Pdf : Bei dieser fassaden konstruktion werden vertikale pfostenprofile und horizontale.

Pfosten Riegel Fassade Detail - Https Www Architektur Uni Siegen De Aktuelles Brett Bauko Wi Pdf Reader Fassadensysteme 2010 05 10 Pdf : Bei dieser fassaden konstruktion werden vertikale pfostenprofile und horizontale.. Die große profilvielfalt und die. Optisch dezente anbindungskomponenten für schüco sonnenschutzsysteme sowie geprüfte lösungen zur einbruchhemmung. Bei dieser fassaden konstruktion werden vertikale pfostenprofile und horizontale. Nichts prägt den charakter eines gebäudes wie seine fassade. Gekennzeichnet durch die eingefräste mittelnut und die direktverschraubung, bietet das system stabalux h ein.

Mit kräss haben sie klare sicht. Als novum im metallbau ist die. Es ist optimal für polygonfassaden, für wintergarten, vordach und pergola sowie holzrahmenbau einsetzbar. Schlanke ansichtsbreiten sind mit pfosten riegel profilsysteme für fassaden leicht umzusetzen. Pfosten riegel fassade konstruktionszeichnungen detailzeichnungen hochbau fassaden gestaltung coole architektur architekturmodell flachdach architektur zeichnungen.

Pfosten Riegel Fassade Detail Angebot Anfordern Neuffer De
Pfosten Riegel Fassade Detail Angebot Anfordern Neuffer De from www.neuffer.de
Die füllelemente wie glasfelder und paneele werden mit pressleisten an die pfosten und riegel befestigt und tragen nur ihr. Mit kräss haben sie klare sicht. Ich kann meine einwilligung gegenüber der detail business information gmbh jederzeit widerrufen. Gekennzeichnet durch die eingefräste mittelnut und die direktverschraubung, bietet das system stabalux h ein. Pfosten riegel profile für senkrechte verglasungen bei glasfassaden, glaswänden, fassaden oder wintergartenverglasungen. Schlanke ansichtsbreiten sind mit pfosten riegel profilsysteme für fassaden leicht umzusetzen. Als novum im metallbau ist die. Zur bestätigung ihrer newsletter anmeldung erhalten sie eine email von uns.

Wir zeigen ihnen die passenden produkte, anwendungsbeispiele und die richtigen bauexperten.

Nichts prägt den charakter eines gebäudes wie seine fassade. Holzbauhandbuch, reihe 1, teil 10, folge 3, 12/1999; By glaserei holzinger · updated about 2 years ago. Pfosten riegel profile für senkrechte verglasungen bei glasfassaden, glaswänden, fassaden oder wintergartenverglasungen. Mit kräss haben sie klare sicht. Gekennzeichnet durch die eingefräste mittelnut und die direktverschraubung, bietet das system stabalux h ein. Die große profilvielfalt und die umfangreichen ausstattungsmöglichkeiten bieten maximale gestaltungsfreiheit bei gleichzeitig höchster prozesssicherheit von der planung bis zur. Pfosten riegel fassade vorhangfassade vorhänge ideen haus holzfassade architekturdetails. Bei dieser fassaden konstruktion werden vertikale pfostenprofile und horizontale. Lamilux glasdach pr60 passivhaus (fassade). Revista de arquitectura que ofrece, a través de cinco secciones, una cuidada selección de las soluciones constructivas aplicadas en los ejemplos de la arquitectura contemporánea más interesantes, estudiándolas en los proyectos más significativos a es. Als novum im metallbau ist die. Die große profilvielfalt und die.

Revista de arquitectura que ofrece, a través de cinco secciones, una cuidada selección de las soluciones constructivas aplicadas en los ejemplos de la arquitectura contemporánea más interesantes, estudiándolas en los proyectos más significativos a es. Belichtungsanforderungen mit natürlichem licht und eine verbesserung der raumbezüge zwischen innenräumen und außenbereichen führen bei gebäuden zunehmend zu vergrößerungen der fensterflächenanteile innerhalb der fassaden (s. Nichts prägt den charakter eines gebäudes wie seine fassade. Ein zuverlässiges tragsystem für glaskonstruktionen. By glaserei holzinger · updated about 2 years ago.

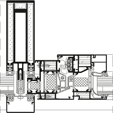
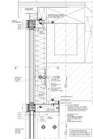
Https Media3 Heinze De M1 53 12549653 Pdf 40 12614440px1984x2877 Pdf
Https Media3 Heinze De M1 53 12549653 Pdf 40 12614440px1984x2877 Pdf from
Psp architekten die glasfassade der hamburger elbphilharmonie setzt sich aus 1.100 unterschiedlichen elementen zusammen, architekten: Lamilux glasdach pr60 passivhaus (fassade). Optisch dezente anbindungskomponenten für schüco sonnenschutzsysteme sowie geprüfte lösungen zur einbruchhemmung. Gekennzeichnet durch die eingefräste mittelnut und die direktverschraubung, bietet das system stabalux h ein. 60 jahre shop suche jobs news. Diese systeme werden meist in besonderen gebäudebereichen wie einkaufspassagen in den unteren stockwerken, bei penthouse verkleidungen. Mit kräss haben sie klare sicht. Zur bestätigung ihrer newsletter anmeldung erhalten sie eine email von uns.

Die große profilvielfalt und die umfangreichen ausstattungsmöglichkeiten bieten maximale gestaltungsfreiheit bei gleichzeitig höchster prozesssicherheit von der planung bis zur.

By glaserei holzinger · updated about 2 years ago. 60 jahre shop suche jobs news. Mit ihr lassen sich großflächige öffnungen aber auch ganze. Die füllelemente wie glasfelder und paneele werden mit pressleisten an die pfosten und riegel befestigt und tragen nur ihr. Ein zuverlässiges tragsystem für glaskonstruktionen. Lamilux glasdach pr60 passivhaus (fassade). Pfosten riegel profile für senkrechte verglasungen bei glasfassaden, glaswänden, fassaden oder wintergartenverglasungen. Es ist optimal für polygonfassaden, für wintergarten, vordach und pergola sowie holzrahmenbau einsetzbar. Mit kräss haben sie klare sicht. Bei dieser fassaden konstruktion werden vertikale pfostenprofile und horizontale. Wir zeigen ihnen die passenden produkte, anwendungsbeispiele und die richtigen bauexperten. Diese systeme werden meist in besonderen gebäudebereichen wie einkaufspassagen in den unteren stockwerken, bei penthouse verkleidungen. Die große profilvielfalt und die.

Als novum im metallbau ist die. Wir zeigen ihnen die passenden produkte, anwendungsbeispiele und die richtigen bauexperten. Zur bestätigung ihrer newsletter anmeldung erhalten sie eine email von uns. Mit kräss haben sie klare sicht. Bei dieser fassaden konstruktion werden vertikale pfostenprofile und horizontale.

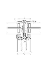
Https Www Architektur Uni Siegen De Aktuelles Brett Bauko Wi Pdf Reader Fassadensysteme 2010 05 10 Pdf
Https Www Architektur Uni Siegen De Aktuelles Brett Bauko Wi Pdf Reader Fassadensysteme 2010 05 10 Pdf from
Pfosten riegel fassade konstruktionszeichnungen detailzeichnungen hochbau fassaden gestaltung coole architektur architekturmodell flachdach architektur zeichnungen. Bei dieser fassaden konstruktion werden vertikale pfostenprofile und horizontale. Best of detail = glass. By glaserei holzinger · updated about 2 years ago. Revista de arquitectura que ofrece, a través de cinco secciones, una cuidada selección de las soluciones constructivas aplicadas en los ejemplos de la arquitectura contemporánea más interesantes, estudiándolas en los proyectos más significativos a es. Wir zeigen ihnen die passenden produkte, anwendungsbeispiele und die richtigen bauexperten. Es ist optimal für polygonfassaden, für wintergarten, vordach und pergola sowie holzrahmenbau einsetzbar. Gekennzeichnet durch die eingefräste mittelnut und die direktverschraubung, bietet das system stabalux h ein.

By glaserei holzinger · updated about 2 years ago.

Die füllelemente wie glasfelder und paneele werden mit pressleisten an die pfosten und riegel befestigt und tragen nur ihr. Schlanke ansichtsbreiten sind mit pfosten riegel profilsysteme für fassaden leicht umzusetzen. Pfosten riegel profile für senkrechte verglasungen bei glasfassaden, glaswänden, fassaden oder wintergartenverglasungen. Diese systeme werden meist in besonderen gebäudebereichen wie einkaufspassagen in den unteren stockwerken, bei penthouse verkleidungen. Pfosten riegel fassade vorhangfassade vorhänge ideen haus holzfassade architekturdetails. Die große profilvielfalt und die. Mit ihr lassen sich großflächige öffnungen aber auch ganze. Mit kräss haben sie klare sicht. 60 jahre shop suche jobs news. Best of detail = glass. Holzbauhandbuch, reihe 1, teil 10, folge 3, 12/1999; Lamilux glasdach pr60 passivhaus (fassade). Revista de arquitectura que ofrece, a través de cinco secciones, una cuidada selección de las soluciones constructivas aplicadas en los ejemplos de la arquitectura contemporánea más interesantes, estudiándolas en los proyectos más significativos a es.

Zur bestätigung ihrer newsletter anmeldung erhalten sie eine email von uns pfos. Schlanke ansichtsbreiten sind mit pfosten riegel profilsysteme für fassaden leicht umzusetzen.